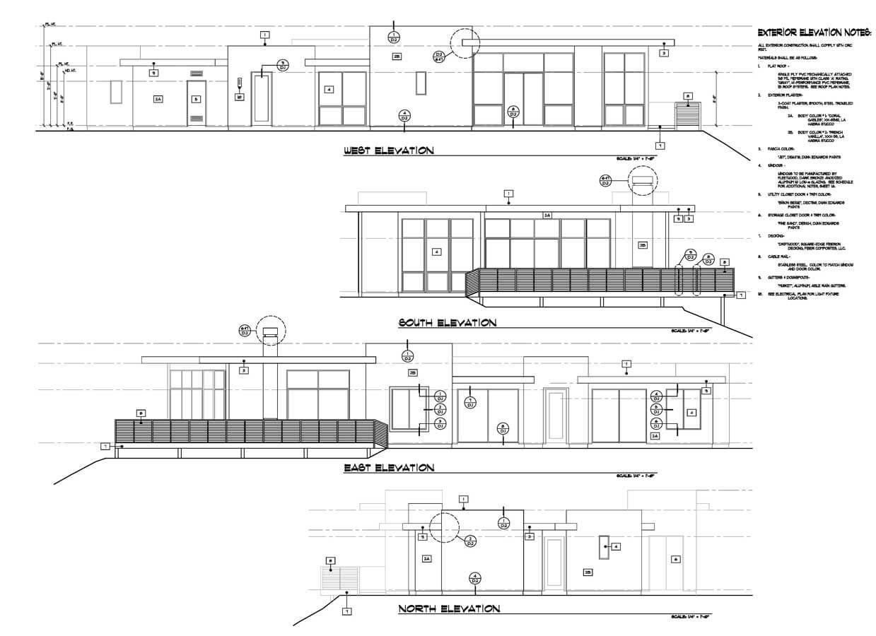
Location: Santa Barbara, CA
Architect: Carl Schneider, AIA
This custom home is situated on an embankment taking full advantage of the ocean views. With the living spaces being treated with large windows and sliding glass doors the home embraces the indoor/ outdoor special play, fresh air, and natural sunlight.


